
该项目设计体现了“蒙台梭利”理想的学习环境,学习空间应该比传统教室更有家的氛围。因此,学习区分为多个小型“房间”。当孩子们来到学校的时候,会给他们像家一样的氛围,这些“房间”的布局被设计成与每个孩子的行为活动相关。
Text description provided by the architects. The project design reflects the ‘Montessori’ ideal learning environment, where a learning space should resemble a home more than a typical classroom. Therefore, the learning area is split into multiple small-sized “rooms”, where all the children could feel more like home when they come to school. The layout of these “rooms” has been designed to correlate with each of children’s activities.


这个时代最适合儿童的学习环境就是自然氛围,即建筑布局经过精心规划,以支持儿童的自主学习,并将室内外空间,建筑和景观融为一体,以提供不同的学习活动。这种布局由不同的“自然”元素组成,每种元素都适合于儿童发育的不同阶段。为这个项目打造理想环境的自然元素包括洞穴,沙土,土堆和树木。
The best learning environment for children this age is nature, that why the building layout has been carefully planned to support children’s self-learning and integrated both indoors and outdoors spaces, architecture, and landscape to provide different learning activities. This layout consists of different “nature” elements, each suitable for different stages of child’s development. The selected natural elements that have been used to create an ideal learning environment for this project include caves, sand, mounds, and trees.


1、“洞穴”概念已被转化为入口处的木质层。层叠层之间的空间允许自然光线透过,使它们成为主导,并为孩子们营造出轻柔清新的有趣氛围。
2、幼儿园周围的操场上使用“沙土”,以促进幼儿的触觉发育。
3、“土堆”用于庭院和周边地区的景观,孩子们可以四处奔跑,并利用这个空间进行户外学习。这个区域也用于连接所有的建筑物和学习空间。
4、“树木”被种植在室外学习空间,并提供遮阳。
1. The “cave” concept has been transformed into wooden layers at the entrance. The spaces in between cascaded layers allow the natural light to pass through making them dominant, interesting and creating a gently fresh atmosphere for the kids.
2. “Sand” is used in the playground around the Toddler Building to facilitate the development of the sense of touch in toddlers.
3. Freeform“Mound” is used in the landscape of the court and surrounding areas, where children could run around and utilize the space for an outdoor learning experience. This area also uses to connect all the buildings and learning spaces together.
4. “Trees” are planted to provide shades for outdoor learning spaces.


这个项目还包括一个家长楼和两个教学楼,其它们与屋顶走廊相互连接。所有的建筑物都用灰色调和木制的板条交替完成的,为外面的人们一种流畅而温暖的感觉。该架构设计简单,可让孩子们轻松了解项目的布局。此外,木制板条有助于过滤外部的阳光,使儿童接触到足够的阳光,这对于他们的愿景和学习来说是最佳的。
This project also includes one building for parents, and two buildings for classrooms, where the buildings are interconnected with roofed corridors. All the building was painted in grey tones alternating with wooden slat to create a smooth, yet warm feeling to the eyes of the outsiders. The architecture is designed to be simple, which allow children to easily understand the layout of the project. Also, wooden slat helps filter out sunlight from outside, so that children are exposed to just enough sunlight that’s optimal for their visions and learning.


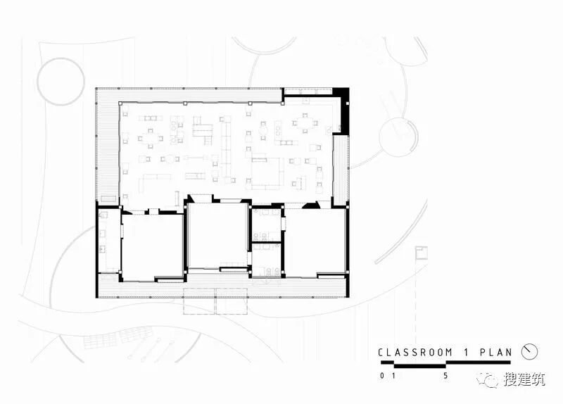
此外,这个木制的板条会限制儿童对外部的视野,可以减少教室外的分散注意力,帮助孩子们更好地专注于他们当前的任务。教学楼还包括多个较小的房间,以提供不同的活动。灵感来自一个儿童的家,每个房间都可以玩,学习和发展不同的技能和知识。因此,“小房间”比大型普通开放式房间更适合儿童学习。
Additionally, this wooden slat will limit children’s view of the outside, which can help decreasing distractions from outside the classrooms and help children to focus better on their current tasks. The classroom buildings also consist of multiple smaller rooms that serve different activities. This planning was inspired by a child’s home, wherein each ‘room’ they could play, learn and develop different skills and knowledge. Thus, a ‘smaller room’ is more suitable and more stimulating for children in learning than a big regular open room.






▼ 场地平面图

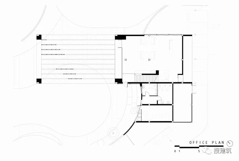
▼ 平面图



▼ 立面图

▼ 剖面图

▼ 示意图

建筑师:Design in Motion
地点:泰国
面积:1100平方米
相关案例:爱谱莉国际蒙特梭利儿童中心

已有100000+人,阅读并关注我们












米多装饰|专注于幼儿园·早期教育·培训中心·学校等教育机构空间装饰设计与施工
杰盟艺饰|专注于教育品牌形象设计·标识设计·VI设计·文化创设·艺术墙绘与执行

教育空间设计|教育品牌设计|艺术墙绘设计